Bifamiliare in vendita

Sant'Agata Sul Santerno, Via S. Vitale
€ 360.000
7 locali 7 locali
310 Mq 310 Mq
3 bagni 3 bagni

Bifamiliare in vendita

Sant'Agata Sul Santerno, Via S. Vitale

Descrizione annuncio

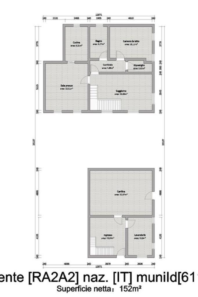
SANT'AGATA SUL SANTERNO: proponiamo in vendita una spaziosa bifamiliare di 310 mq. L'immobile, ristrutturato nel 2002 e nel 2023, si divide in due appartamenti sviluppati su due livelli. Una delle due porzioni presenta al piano terra ingresso con lavanderia e cantina, al piano superiore lo spazio destinato ad abitazione composto da ampio salone, sala, cucina abitabile, camera da letto, bagno e ripostiglio. La seconda porzione, attualmente locata fino al 2029, presenta al piano terra: ingresso, soggiorno, sala da pranzo, cucina abitabile, lavanderia e bagno, al piano superiore la zona notte composta di tre camere da letto e bagno. Completano l'offerta un pergolato, due posti auto coperti esterni ed il deposito. Il giardino privato di oltre 3500mq rappresenta un'oasi di tranquillità, perfetta per momenti di relax all'aperto.

I nostri uffici offrono una consulenza gratuita finanziaria!

Devi vendere casa? Tranquillo ti aiutiamo noi!

Mostra tutto

Nelle vicinanze

Trasporto pubblico Trasporto pubblico
Trasporto pubblico
430 m
Massa Lombarda (SAF)
Massa Lombarda (SAF)
2,5 Km
Panchette
Panchette
2,0 Km
Santa Lucia
Santa Lucia
2,0 Km
Sant'Agata sul Santerno
Sant'Agata sul Santerno
440 m
Scuole Scuole
Scuole
2,5 Km
Farmacia Farmacia
Farmacia Dr. Bragonzoni
280 m
Ospedali Ospedali
Ospedali
2,6 Km
Bar Bar
Bar
3,0 Km
Ristoranti Ristoranti
Ristorante Pizzeria Ellepi
2,9 Km
Mostra tutto

Caratteristiche

Rif.:
61138267
Piano:
Su più livelli di 2
Totale piani:
2
Box:
1
Posti auto:
4
Camere da letto:
4
Mostra tutto
Prezzo Prezzo
€ 360.000
Rata mutuo Rata mutuo
€ 1.709 / mese
Spese annue Spese annue
€ 0
Proponi il tuo prezzoProponi il tuo prezzo

Classe Energetica

G
G
G
G
G
G
G
G
G
EP globale non rinnovabile:
276.20 kW h/m² anno
EP globale rinnovabile:
10.77 kW h/m² anno
EP invernale del fabbricato:
EP estiva del fabbricato:
Anno di costruzione:
1900
Riscaldamento:
Autonomo
Tipo impianto:
A radiatori
Tipo alimentazione:
Metano

Ti interessa visionare l'immobile?

Fissa un appuntamento  Fissa un appuntamento

Richiedi informazioni

Clicca su Leggi per aprire l'informativa
* Questi campi sono obbligatori

Calcola il tuo mutuo

Semplice e senza impegno
Anticipo

( % )
Mutuo

( % )

pochi semplici passi

inserisci i tuoi dati
Questionario completato
Grazie per aver richiesto un appuntamento senza impegno con un nostro Consulente del Credito e Assicurativo.

Hai inserito correttamente tutti i dati necessari e a breve riceverai una e-mail con un link da convalidare per inviare i tuoi dati.
Affiliato
Horizon Immobiliare Srl
Via Foro Boario, 30 int 32 48022 Lugo (RA)
Via Foro Boario, 30 int 32 48022 Lugo (RA)
Zona: Lugo - Sant'Agata sul Santerno - Cà di Lugo - Villa San Martino
Mostra su mappa
Orari: Dal lunedì al sabato dalle ore 9 alle ore 20 (orario continuato)
Affiliato
Horizon Immobiliare Srl
Via Foro Boario, 30 int 32 48022 Lugo (RA)

2026 Tecnocasa Franchising S.p.A. - P. IVA 08365160152 - Via Monte Bianco 60/A 20089 Rozzano (MI). Ogni agenzia ha un proprio titolare ed è autonoma. Privacy policy | Policy utilizzo | Cookie policy